PREMIUM INDUSTRIAL OPPORTUNITY

Warehouse 1 / 26 Cameron Drive is a newly constructed industrial building located in the Armidale Airside Business Park which sits parallel to the New England Highway (A15) mid-way between the Sydney to Brisbane inland transport link.

Location alone makes the availability of this warehouse appealing to any distribution / warehousing business looking to secure an easy transport link between the two capital cities, or for any manufacturing business looking to establish or expand. Petrol stations are also strategically located on either side of the highway at the entrance to the Park (western side currently under construction).

This quality building has been thoughtfully designed with ease of access in mind.

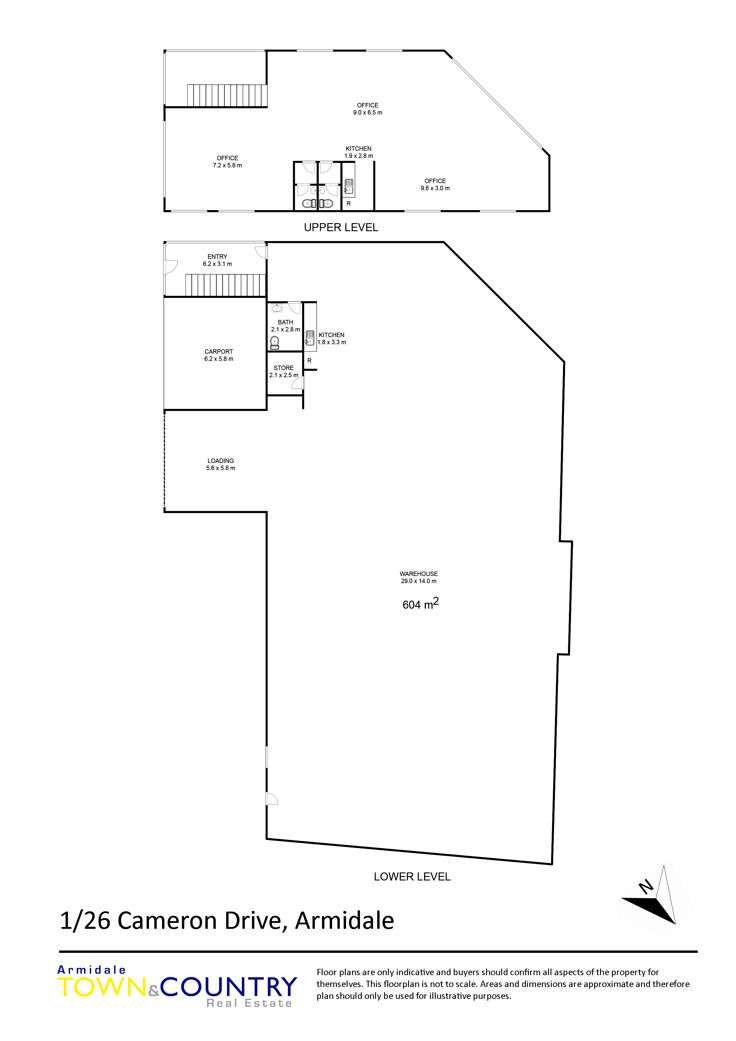
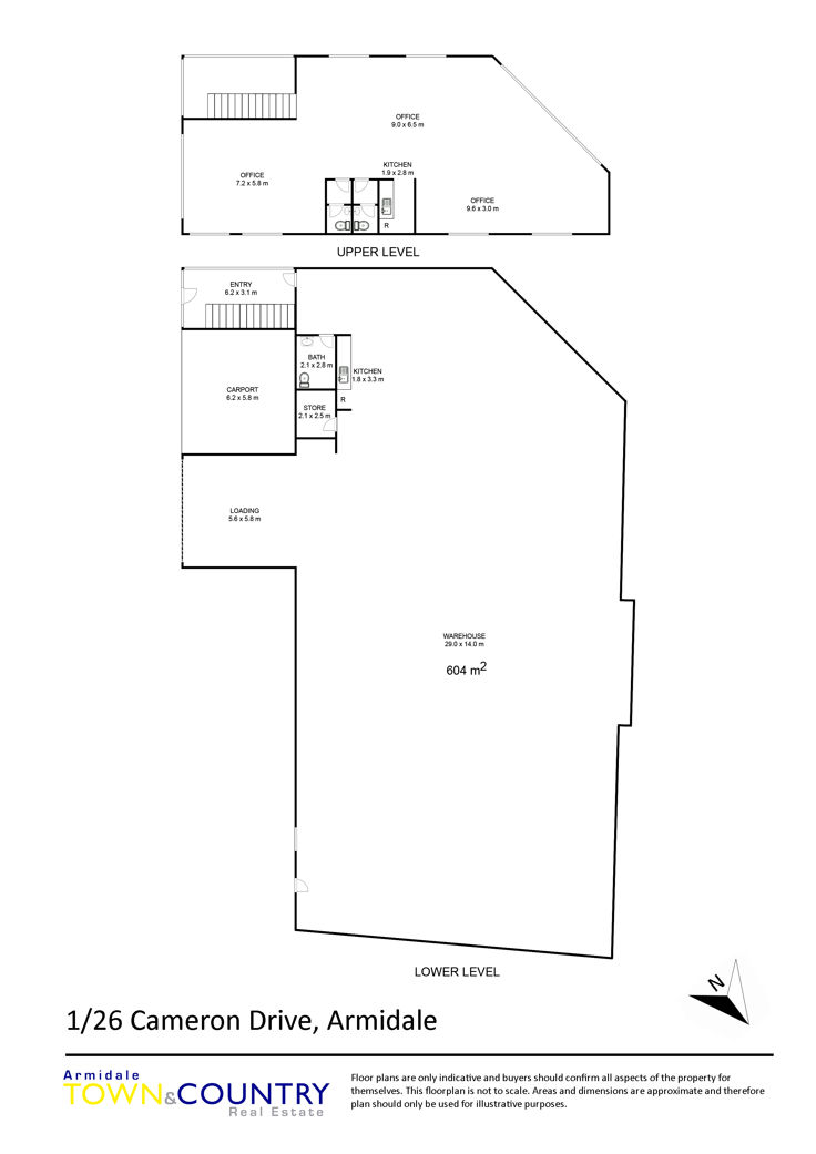
Lower Level:

* 604m2 of warehouse space (8.5m to 10.7m apex clearance, approx)
* 3-phase power
* High roller door access (4.5m, approx)
* Entry foyer with reception area potential
* Kitchenette / Staff meals area
* Disabled toilet facilities
* Storeroom
* 6 on-site car parks (2 under cover & 4 open air)

Upper Level:

*162m2 office space
* Ducted air-conditioning
* Loads of windows for natural light
* Kitchenette with microwave and fridge spaces
* Toilet facilities

This is a prime opportunity to become a part of Armidale's newest industrial community.

Contact Jeremy Creagan on 0401 508 801 to arrange your inspection.



Contact The Agent

Jeremy Creagan

Director / Sales Manager
0401 508 801
Email Agent
View My Properties

Maxine Jones

Administration & Commerical Support
02 6772 2111
Email Agent
View My Properties
Property ID 21566915
Building Size 766 sqm

Book Inspection

Brochure

Share

Talk with an agent: 02 6772 2111

Connect with us

Armidale Town & Country Real Estate

Address

Armidale Town & Country Real Estate
116 Rusden Street
Armidale, NSW 2350

Armidale Town & Country Real Estate 2026 | Privacy | Marketing by Real Estate Australia and ReNet Real Estate Software